Lianyungang Water Meter Co., Ltd
Email: sales@langhua.com
Tel: 0086-518-86097577
Mob/Whatsapp:0086-18795550044
Add: No.16 West Hailian Road,Lianyungang city,Jiangsu province,China
I. overview
This product is composed of vertical spiral base meter, counting component of photoelectric meter, cover component, metal hose component, etc. The signal corresponding to water quantity is obtained by the position of the detection wheel of the infrared receiving and receiving tube installed on both sides of the wheel. The remote reading and data management of the water meter can be realized through the follow-up system, and the vertical spiral electronic remote water meter is formed.
This product is used to measure the total volume of water flowing through water pipes.
The product has a wide measuring range and is suitable for occasions with large flow changes; no worm, gear transmission mechanism, impeller direct drive counter, with high transmission efficiency; internal adjustable structure, effectively prevent self-adjusting meter; built-in stainless steel filter, effective protection of metering mechanism; high wear-resistant bearing system, ensure the reliability of product long-term stability box, significantly improve production. Maximum flow rate of product; Removable core structure for easy maintenance and replacement.
II. Technical parameters
Temperature Grade: Cold Water Meter: T30 Hot Water Meter: T30/90
Pressure Level: MAP10 or MAP16
Pressure loss grade: p63
Upstream Flow Field Sensitivity Level: U5
Sensitivity level of downstream flow field: D5
Flow parameters: Q4/Q3 = 1.25 Q3/Q1 = 160
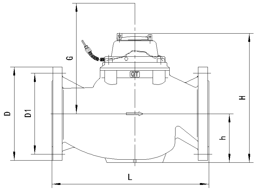
Shape size
